- Woonoppervlakte
- Circa 160 m²
- Perceeloppervlakte
- Circa 515 m²
- Bouwjaar
- Gebouwd in 2017
- Aantal kamers
- 5 kamers (3 slaapkamers)
De woning is gebouwd in traditionele bouwaard en degelijk uitgevoerd met betonnen vloeren, houten kozijnen met HR++ glas en heeft een A++ energielabel. Dankzij de 17 zonnepanelen, vloerverwarming en een energiezuinige Intergas C.V.-ketel (2017) woon je hier niet alleen comfortabel, maar ook met oog voor de toekomst. Bovendien zorgen het warmteterugwinsysteem en de mechanische ventilatie voor een gezond binnenklimaat het hele jaar door.
* Bouwjaar: 2017
* Woonoppervlak: 160 m²
* Inhoud: 731 m³
* Kavel: 515 m²
* Slaapkamers: 3/4
Begane grond:
Een net pad leidt naar de stijlvolle dubbele voordeur, waarna je de ruime entree betreed met meterkast, keurig toilet met fonteintje en trapopgang. Vanuit de hal kom je in het hart van de woning, de royale, speels ingerichte woonkeuken, met eethoek en openslaande deuren naar het overdekte terras. De luxe, in 2017 handgemaakte, keuken bestaat uit een werkblad met een 6 pits Agafornuis met 4 ovens en schouw tegen de muur, en een groot spoeleiland. Het geheel heeft een landelijke uitstraling en biedt veel bergruimte en diverse inbouwapparatuur. Een heerlijke ontmoetingsplek voor het hele gezin. Aansluitend, af te sluiten met en-suite deuren, is de doorzonwoonkamer. Deze is licht en ruim en de houten vloer zorgt voor een gezellige warme sfeer. Verder is er een extra kamer aan de voorzijde, ideaal voor thuiswerken, hobby, studeren of slapen op de begane grond en aan de achterzijde vind je een praktische bijkeuken met op maat gemaakte witgoedkast en deur naar de achtertuin. Beide ruimtes zijn bereikbaar vanuit de keuken. De gehele begane grond is voorzien van vloerverwarming, wat zorgt voor aangenaam wooncomfort. In de hal, toilet, deel keuken en bijkeuken ligt een donkere hardstenen vloer en in de overige ruimtes een houten vloer.
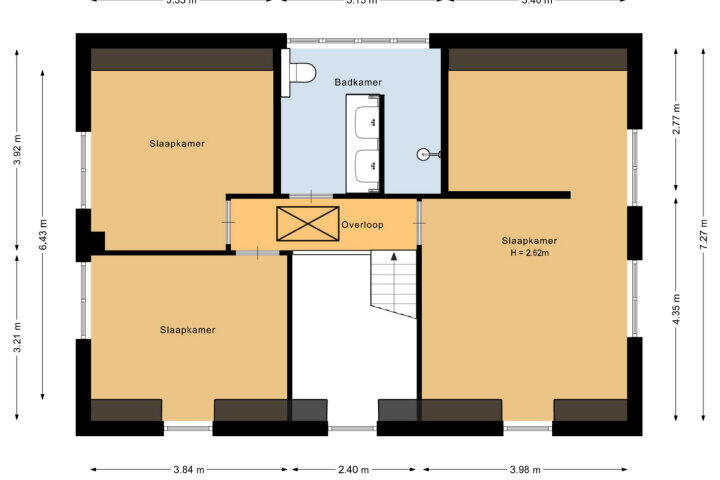
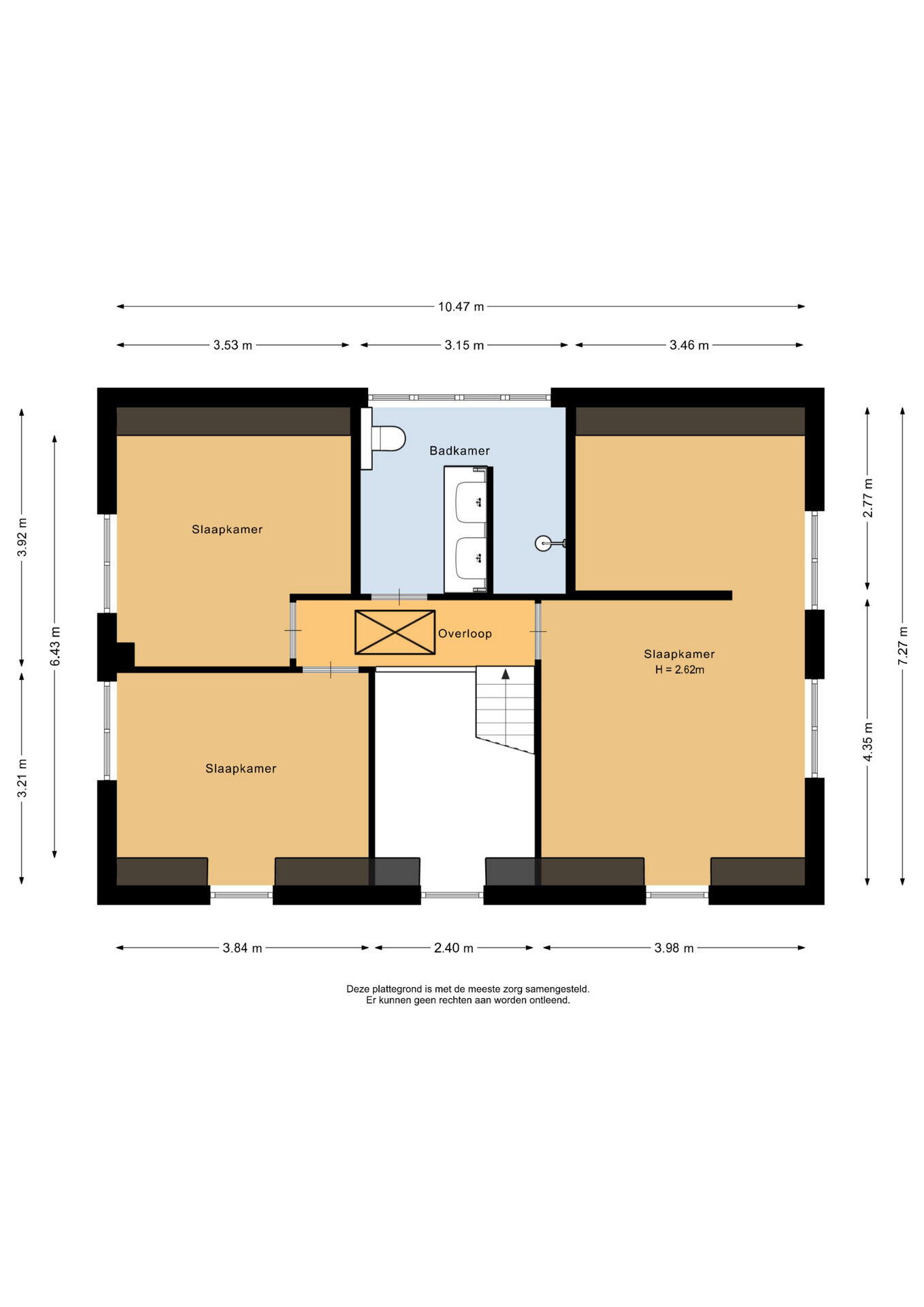
Eerste verdieping:
De houten trap in de hal brengt je naar de overloop met vide. Vanaf hier heb je toegang tot drie volwaardige slaapkamers, waarvan de hoofdslaapkamer, over de gehele breedte van de woning, beschikt over een ruime, halfopen inloopkast. De luxe badkamer uit 2017 is modern afgewerkt en biedt alle comfort die je mag verwachten met een inloopdouche achter de wand met dubbel wastafelmeubel, toilet en vloerverwarming. De 3 kleine erkerramen aan de voorzijde, op 2 slaapkamers en boven de trap, geven de woning extra sfeer en karakter. Op de gehele verdieping ligt een houten vloer.
Zolderverdieping:
De bergzolder is bereikbaar via een luik op de overloop en een opvouwbare trap en biedt volop extra bergruimte. Hier bevinden zich tevens de opstelplaatsen voor de C.V.-ketel, het warmte terugwin systeem en de mechanische ventilatie.
Tuin:
Rondom de woning ligt een verzorgde tuin, met als hoofdtuin de achtertuin met een fraai vrij uitzicht over de landerijen. Gelegen op het oosten, waardoor je ’s ochtends en tot in de middag heerlijk kunt genieten van de zon. Omheind door een heg met achteruitgang naar de sloot en diverse bomen en stuiken rondom het grasveld. De tuin is voorzien van een achterom en biedt volop mogelijkheden voor ontspanning, spelen of gezellig buiten eten. Hier heb je alle privacy om te genieten. Het terras achter de woning is overdekt en verlicht. De aangebouwde stenen garage heeft een dubbele deur naar de oprit en is voorzien van elektra.
Bijzonderheden:
* Luxe woning met vrij uitzicht aan achterzijde
* Energielabel A++
* HR++ glas en 17 zonnepanelen (in eigendom)
* Duurzaam: volledig geïsoleerd en energiezuinig
* Vloerverwarming op de begane grond
* Luxe keuken en badkamer
* Mogelijkheid tot slapen op de begane grond
* Drie ruime slaapkamers en een inloopkast
* Krachtstroom en uitgebreide meterkast (7 groepen, 3 aardlekschakelaars)
* Intergas C.V.-ketel uit 2017
* Warmte terugwin systeem en mechanische ventilatie
* Fraai aangelegde tuin met achterom, hoofdtuin op het oosten
Omgeving
Het verzorgde geheel is gelegen aan de rand van het dorp in een kleinschalige nieuwbouw woonwijk met aan de achterzijde een landelijk uitzicht. Op korte afstand van het gezellige centrum van Dwingeloo met de mooiste “Brink” van Drenthe en leuke terrasjes. Winkel- en sociale voorzieningen én het prachtige Nationaal park “Dwingelderveld” zijn op loop en fietsafstand gelegen.
De natuurgebieden die het Nationaal Park “Dwingelderveld” vormen liggen naast de deur en bieden veel mogelijkheden om te wandelen, te fietsen en voor de liefhebber zijn er mooie ATB routes in de omgeving.
Voor basisonderwijs kan men op de 'brede' basisschool terecht in Dwingeloo. Voortgezet onderwijs kan men dichtbij vinden in het naast gelegen dorp Diever (ca. 5 km). Voor de grotere boodschappen en meer voorzieningen kun je goed terecht in Beilen, Assen, Hoogeveen en Meppel.
Overdracht
- Vraagprijs
- € 789.500 k.k.
- Status
- Verkocht
- Aanvaarding
- In overleg
Bouw
- Object type
- Eengezinswoning, vrijstaande woning
- Soort bouw
- Bestaande bouw
- Bouwjaar
- 2017
- Soort dak
- Zadeldak bedekt met pannen
Oppervlakte en inhoud
- Woonoppervlakte
- 160 m²
- Perceeloppervlakte
- 515 m²
- Inhoud
- 731 m³
- Overige inpandige ruimte
- 37 m²
- Gebouwgeb. buitenruimte
- 21 m²
Indeling
- Aantal kamers
- 5 kamers (3 slaapkamers)
- Aantal badkamers
- 1 badkamer
- Badkamervoorzieningen
- Toilet, dubbele wastafel, wastafelmeubel, inloopdouche, vloerverwarming
- Aantal woonlagen
- 3 woonlagen
- Voorzieningen
- Mechanische ventilatie, zonnepanelen
Energie
- Energielabel
- A++
- Energielabel registratie
- 13-06-2025
- Isolatie
- Volledig geïsoleerd
- Verwarming
- Cv-ketel, vloerverwarming gedeeltelijk
- Warm water
- Cv-ketel
- Cv ketel
- Hr combiketel gas gestookt uit 2017 (eigendom)
Buitenruimte
- Ligging
- Aan rustige weg, in woonwijk, vrij uitzicht, in bosrijke omgeving, landelijk gelegen
- Tuin
- Achtertuin, voortuin, zijtuin
- Afmetingen achtertuin
- 250 m² (12.5 meter diep en 20 meter breed)
- ligging tuin
- Gelegen op het oosten en bereikbaar via achterom
Garage
- Soort garage
- Aangebouwd steen
- Capaciteit
- 1 auto
- Voorzieningen
- Elektra
Parkeergelegenheid
- Soort parkeergelegenheid
- Op eigen terrein
Energieverbruik in Dwingeloo
Energielabel deze woning
Energielabel A++
Publicatie energielabel: 13-06-2025
Stroomverbruik per jaar
(Gemiddelde vrijstaande woning in Dwingeloo)
Gasverbruik per jaar
(Gemiddelde vrijstaande woning in Dwingeloo)
* Cijfers zijn afkomstig van het CBS en bedoeld als indicatie en kunnen verschillen voor deze woning
Indicatie hypotheeklasten
Eigen inleg:
Spaargeld / overwaarde
Rente:
Laagste 10-jaars rente
Laagste 10-jaars rente
2,83% - Centraal Beheer Groen... - NHG
3,1% - Centraal Beheer Groen L... - 80%
Laagste 20-jaars rente
3,26% - Argenta Groen Hypothee... - NHG
3,47% - Argenta Groen Hypothee... - 80%
Laagste 30-jaars rente
3,43% - Argenta Groen Hypothee... - NHG
3,64% - Argenta Groen Hypothee... - 80%
Hypotheek:
Bruto maandlasten: € 0 p/m
Netto maandlasten: € 0 p/m
Hoe berekenen we dit?
Het rentepercentage is gebaseerd op de laagste 10 jaars vaste rente voor één hypotheekdeel. De vermelde rente (3.1% zonder NHG) is gecontroleerd op 02-12-2025. Deze berekening is gebaseerd op een annuïteitenhypotheek die volledig wordt afgelost, waarbij de maandlasten gedurende de gehele looptijd gelijk blijven. De werkelijke rente en netto maandlasten kunnen variëren, afhankelijk van uw persoonlijke situatie en de hypotheekverstrekker. Raadpleeg een financieel adviseur voor een nauwkeurige berekening en advies. Aan deze berekening kunnen geen rechten worden ontleend; het dient enkel als indicatie.
Documentatie
Kadastrale kaart
Leefomgeving
WOZ waarderapport
BAG uittreksel
Plattegronden PDF
Brochure-de-kampen-32-dwingeloo
Brochure
Bezoek onze website
Bezichtiging
Bod uitbrengen
Waardebepaling
Zoekopdracht
Alles downloaden
Zonnegrenzen bekijken
Op de kaart
Inwoners in Dwingeloo
Cijfers voor postcodegebied 7991
- Totaal aantal inwoners
- 4115 inwoners
- Mannen
- 49%
- Vrouwen
- 51%
Inwoners in Dwingeloo
Cijfers voor postcodegebied 7991
- tot 15 jaar
- 14%
- 15 tot 25 jaar
- 11%
- 25 tot 35 jaar
- 17%
- 45 tot 65 jaar
- 33%
- 65 en ouder
- 25%
Huishoudens in Dwingeloo
Cijfers voor postcodegebied 7991
- Eenpersoons zonder kinderen
- 31%
- Meerpersoons zonder kinderen
- 37%
- Huishoudens zonder kinderen
- 68%
Huishoudens in Dwingeloo
Cijfers voor postcodegebied 7991
- Huishoudens met één kind
- 6%
- Huishoudens met meerdere kinderen
- 27%
- Huishoudens met kinderen
- 33%
Woningen in Dwingeloo
Cijfers voor postcodegebied 7991
- Woningen voor 1945
- 27%
- Woningen tussen 1945 en 1965
- 12%
- Woningen tussen 1965 en 1975
- 19%
- Woningen tussen 1975 en 1985
- 14%
- Woningen tussen 1985 en 1995
- 14%
Woningen in Dwingeloo
Cijfers voor postcodegebied 7991
- Woningen tussen 1995 en 2005
- 10%
- Woningen tussen 2005 en 2015
- 2%
- Woningen na 2015
- 2%
- Huurwoningen
- 30%
- Koopwoningen
- 70%
Overige in Dwingeloo
Cijfers voor postcodegebied 7991
- Gemiddelde WOZ waarde
- € 309.000,-
- Personen onder de 65 met uitkering
- 5%
Overige in Dwingeloo
Cijfers voor postcodegebied 7991
- Adressen per km²
- 232
- Stedelijkheid (schaal 1 op 5)
- 20%
Zandbergen Makelaardij
Indien u vragen heeft of u wilt een bezichtiging inplannen, dan kunt u gebruik maken van het formulier hiernaast. Er zal daarna op korte termijn contact met u worden opgenomen.
Egginklaan 2 - 4
7971 CA, Havelte
0521 - 340 043 info@zandbergenmakelaardij.nl www.zandbergenmakelaardij.nlContact opnemen
Over ons
Een huis kopen of verkopen is geen alledaagse gebeurtenis. Het vraagt om goede voorbereiding en begeleiding. Bij Zandbergen Makelaardij sta je er niet alleen voor. Ons team – bestaande uit Gerben (NVM Register Makelaar), Rik (NVM Makelaar), Annemieke (binnendienst) en Martine (Assistent Makelaar) – staat voor je klaar om je met vakkennis en enthousiasme te helpen.
Wij zijn lokaal geworteld in de regio Meppel, Westerveld en omgeving. Je komt ons tegen bij sportverenigingen, op het voetbalveld of tijdens een wandeling door de mooie natuurgebieden in Drenthe en Overijssel. Ook op maatschappelijk vlak zijn we actief: we ondersteunen lokale sportclubs en werken graag samen met ondernemers uit de regio.
Zandbergen Makelaardij is opgericht in 2004. Sindsdien hebben we talloze mensen geholpen bij het vinden of verkopen van hun woning. Onze kennis blijft actueel dankzij regelmatige bijscholing. Bovendien zijn we lid van de NVM, waarbij Gerben Zandbergen een leidende rol vervult als voorzitter van de afdeling Drenthe.
Ben je op zoek naar een makelaar die de regio kent, betrokken is én staat voor kwaliteit? We maken graag kennis met je!
Nieuwste reviews
-
Klaproosweg 59
Ik ben erg tevreden over de service. Alles is prettig en professioneel verlopen, met duidelijke communicatie en goede begeleiding.
-
Kick Harms
Zeer onprofessioneel bedrijf. Mijn woning werd getaxeerd samen met z'n broer die zich voordoet als bodyguard. Met een hoop bombarie stormen...
-
Korenbloemweg 2 g
Van het begin gesprek tot aan het eind altijd een duidelijke communicatie. Werden van elke bezichtiging goed op de hoogte gehouden. Wij zijn...