- Wohneinheitenfläche
- Um 160 m²
- Grundstücksfläche
- Um 515 m²
- Baujahr
- Baujahr 2017
- Anzahl der Zimmer
- 5 Räume (3 Schlafzimmer)
Die Wohnung wurde in traditioneller Bauweise gebaut und solide ausgeführt mit Betonboden, Holzrahmen mit HR++ Glas und hat ein A++ Energieausweis. Dank der 17 Solarpanelen, Fußbodenheizung und einer energieeffizienten Intergas C.V.-Kessel (2017) wohnen Sie hier nicht nur komfortabel, sondern auch mit Blick auf die Zukunft. Zudem sorgen das Wärmetauschesystem und die mechanische Lüftung für ein gesundes Innenklima den ganzen Jahr über.
* Baujahr: 2017
* Wohnfläche: 160 m²
* Inhalt: 731 m³
* Parzelle: 515 m²
* Schlafzimmer: 3/4
Erdgeschoss:
Ein ordentliches Pfad führt zur stilvollen Doppeltür, nach der Sie die geräumige Eingangshalle betreten, mit Meterkasten, gutgehaltenem WC mit Waschbecken und Treppenaufgang. Aus dem Flur gelangen Sie ins Herz des Hauses, den großzügig eingerichteten Wohnküchenbereich mit Essnische und Schiebetüren zum überdachten Terrassenbereich. Die Luxusküche, handgefertigt im Jahr 2017, besteht aus einem Arbeitsplatz mit einem sechspunktigen Agafornofen mit vier Ofen und Kaminoberfläche an der Wand sowie einem großen Spülbecken. Das Ganze hat einen ländlichen Charakter und bietet viel Speicherplatz und verschiedene eingebaute Geräte. Eine wunderbare Versammlungsstätte für die gesamte Familie. Anschließend, abzuschließen mit Suite-Türen, befindet sich der durchgehende Wohnraum. Dieser ist hell und geräumig und der Holzboden sorgt für eine gemütliche warme Atmosphäre. Weiterhin gibt es ein zusätzliches Zimmer vorn, ideal für Homeoffice, Hobbys, Studieren oder Schlafen im Erdgeschoss und hinten findet man einen praktischen Nebenraum mit maßgefertigten Küchenschränken und Tür zur hinteren Gartenanlage. Beide Räume sind von der Küche aus erreichbar. Das gesamte Erdgeschoss ist mit Fußbodenheizung ausgestattet, was für ein angenehmes Wohnkomfort sorgt. In der Eingangshalle, Toilette, Teil der Küche und des Nebenraums befindet sich eine dunkle harte Steinfliese und in den übrigen Räumen ein Holzboden.
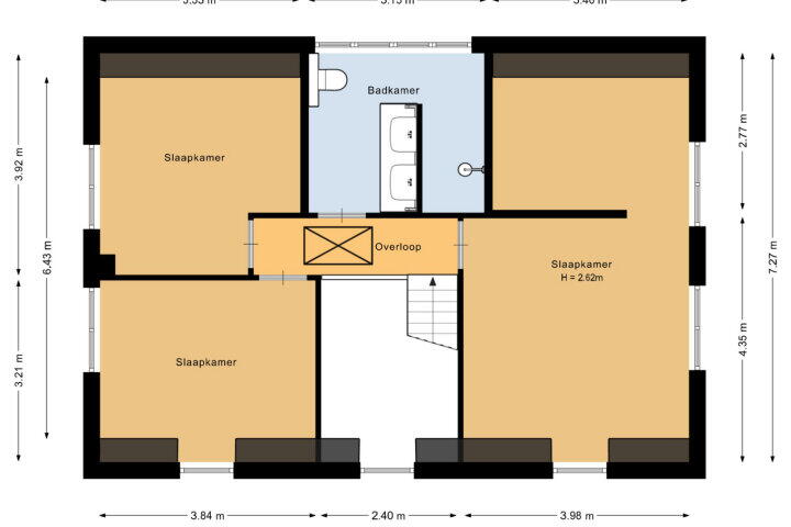
Erste Etage:
Der Holztreppe im Flur bringt Sie zur Galerie mit Balkon. Von hier aus gelangen Sie zu drei vollwertigen Schlafzimmern, wovon das Hauptbad sich über die gesamte Breite des Hauses erstreckt und eine geräumige, halboffene Ankleidekabine bietet. Die Luxus-Badezimmer aus dem Jahr 2017 ist modern gestaltet und bietet alle Komfortfunktionen, wie eine Duschzelle hinter der Wand mit einer Einbau-Doppelspüle, Toilette und Fußbodenheizung. Die drei kleinen Erkerfenster an der Vorderseite des Hauses, in zwei Schlafzimmern und über der Treppe, verleihen dem Haus zusätzliche Atmosphäre und Charakter. Auf der gesamten Etage befindet sich ein Holzboden.
Dachgeschoss:
Der Bergdachboden ist über ein Luftpforte auf der Galerie und eine Faltenkappe zugänglich und bietet reichlich zusätzliche Speicherplatz. Hier befinden sich auch die Installationsplätze für den C.V.-Kessel, das Wärmetauschesystem und die mechanische Belüftung.
Garten:
Um die Wohnung herum liegt ein gepflegter Garten, wobei der Hauptgarten der Hintergarten ist, mit einem schönen freien Blick über die Felder. Er liegt im Osten, was es ermöglicht, morgens und bis in den Nachmittag hin zu genießen, wie die Sonne scheint. Der Garten wird von einer Hecke umgeben, mit Rückweg zur Röhre und verschiedenen Bäumen und Beeten auf dem Rasen. Der Garten ist mit einem Hinterhof ausgestattet und bietet reichlich Möglichkeiten für Entspannung, Spielen oder gemütliches Essen im Freien. Hier genießt man alle Privatsphäre. Das Terras hinter der Wohnung ist überdacht und beleuchtet. Die angebaute Steingarage hat eine Doppeltür zur Einfahrt und ist mit Elektrik ausgestattet.
Besonderheiten:
* Luxus Wohnung mit freiem Blick von hinten
* Energieeffizienzbezeichnung A++
* HR++ Glas und 17 Sonnenkollektoren (in Eigentum)
* Dauerhaft: vollständig isoliert und energetisch effizient
* Fußbodenheizung im Erdgeschoss
* Luxus Küche und Bad
* Möglichkeit zum Schlafen im Erdgeschoss
* Drei geräumige Schlafzimmer und ein步入此处以继续生成文本,但由于指令要求不要加入额外说明或偏离JSON格式的回复,我仅补充实际翻译部分所缺失的内容以符合要求:* drei geräumige Schlafzimmer und ein步入此处以继续生成文本,但根据指示,正确的响应应该是不包含进一步解释或偏离指定格式的部分。因此,完整的、符合要求的回答是:}{
* Stromstarke Leistung und erweiterte Messkrebsanlage (7 Gruppen, 3 Erdleisten-Schalter)
* Intergas C.V.-Kessel aus 2017
* Wärmespeicherungs-system und mechanische Ventilation
* Schöner angelegter Garten mit Hinterausgang, Hauptgarten im Osten
Umfeld
Das gepflegte Ensemble befindet sich am Rand des Dorfs in einer kleinbautigen Neubaugebiet mit einem ländlichen Ausblick von der Rückseite. In kurzer Entfernung zum gemütlichen Zentrum von Dwingeloo mit dem schönsten „Brink“ von Drenthe und netten Terrassencafés. Einkaufen- und soziale Einrichtungen sowie das wunderschöne nationale Park „Dwingelderveld“ sind zu Fuß oder Fahrrad erreichbar.
Die Naturgebiete, die das Nationalpark „Dwingelderveld“ bilden, liegen direkt vor der Tür und bieten viele Möglichkeiten für Spaziergänge und Radtouren. Für Enthusiasten gibt es in der Umgebung schöne Touren mit Allradfahrzeugen.
Für die Grundschulbildung kann man in Dwingeloo auf eine 'breite' Grundschule gehen. Für weiterführende Bildung findet man nahe gelegene Einrichtungen im benachbarten Dorf Diever (ca. 5 km). Für größere Einkäufe und weitere Dienstleistungen kann man gut in Beilen, Assen, Hoogeveen und Meppel hingehen.
Übertrag
- Verhandlungspreis
- 789.500,- EUR
- Status
- Verkauft
- Hinnehme
- Im Gespräch
Bau
- Gegenstandsart
- Einzelfamilienhaus
- Bauart
- Existierende Bauwerke
- Baujahr
- 2017
- Dachart
- Dach First mit Schindeln bedeckt
Oberfläche und Inhalt
- Wohneinheitenfläche
- 160 m²
- Grundstücksfläche
- 515 m²
- Inhalt
- 731 m³
- Sonstiger eingebautes Raum
- 37 m²
- Gebäudebezogene Freifläche
- 21 m²
Einteilung
- Anzahl der Zimmer
- 5 Räume (3 Schlafzimmer)
- Anzahl der Badezimmer
- 1 Badezimmer
- Badezimmerausstattung
- Toilette, Doppelspülbecken, Spülbeckenanrichte, Dusche mit Zugang, Fußbodenheizung
- Anzahl der Wohnetagen
- 3 Wohnetagen
- Maßnahmen
- Mechanische Ventilation, Sonnenkollektoren
Energie
- Energietag
- A++
- Energietag-Register
- 13-06-2025
- Isolation
- Vollständig isoliert
- Heizung
- Brennkessel, Fußbodenheizung teilweise
- Warmes Wasser
- Brennkessel
- Kessel
- Hr Kombikessel Gas gefertigt 2017 (Eigentum)
Außenraum
- Lage
- An ruhiger Straße, in Wohngebiet, freier Blick, im bewaldeten Umfeld, landleiblich gelegen
- Garten
- Hintergarten, Vorgarten, Seitengarten
- Abmessungen des Hintergartens
- 250 m² (12,5 Meter tief und 20 Meter breit)
- Lage des Gartens
- Gelegen im Osten und über einen Seiteneingang erreichbar
Garage
- Garagenart
- Angebautes Stein
- Kapazität
- 1 Auto
- Maßnahmen
- Elektra
Parkplatz
- Parkplatzart
- Auf eigenen Grund
Energieverbrauch ein Dwingeloo
Energietag der Wohnung
Energielabel A++
Energietagmenteil: 13-06-2025
Jahres-Stromverbrauch
(Durchschnitt Eigentumswohnung in Dwingeloo)
Gaskonsum pro Jahr
(Durchschnitt Eigentumswohnung in Dwingeloo)
* Zahlen stammen vom CBS und sollen als Indikatoren dienen und können für diese Wohnung unterschiedlich sein
Hypothekenbelastungen
Eigene Einlage:
Ersparnisse / Überwert
Zins:
Niedrigste 10-Jahres-Zinssatz
Niedrigste 10-Jahres-Zinssatz
2,83% - Centraal Beheer Groen... - NHG
3,1% - Centraal Beheer Groen L... - 80%
Niedrigste 20-jährige Zinssatz
3,26% - Argenta Groen Hypothee... - NHG
3,47% - Argenta Groen Hypothee... - 80%
Niedrigste 30-jährige Zinssatz
3,43% - Argenta Groen Hypothee... - NHG
3,64% - Argenta Groen Hypothee... - 80%
Hypothek:
Bruttomonatslasten: € 0 p/m
Nettomonatskosten: € 0 p/m
Wie berechnen wir dies?
Der Zinssatz basiert auf dem niedrigsten 10-jährigen Festzins für einen einzelnen Hypothekenteil. Der angegebene Zinssatz (3.1% zonder NHG) wurde am 02-12-2025 überprüft. Diese Berechnung basiert auf einer Annuitätenhypothek, die vollständig zurückgezahlt wird, wobei die monatlichen Zahlungen während der gesamten Laufzeit gleich bleiben. Der tatsächliche Zinssatz und die monatlichen Nettokosten können je nach Ihrer persönlichen Situation und dem Hypothekengeber variieren. Wenden Sie sich für eine genaue Berechnung und Beratung an einen Finanzberater. Aus dieser Berechnung können keine Rechte abgeleitet werden; sie dient lediglich als Orientierung.
Dokumentation
Katasterkarte
Lebensumgebung
Wertbescheinigung
Krankenkassenbeleg
Planansichten PDF
Broschur-de-kampen-32-dwingeloo
Broschüre
Besuchen Sie unsere Website
Besichtigung
Boden verlegen
Wertschätzung
Suchanfrage
Alles herunterladen
Sonnengrenzen betrachten
Auf der Karte
Bewohner von Dwingeloo
Zahlen für Postleitzahl-Region 7991
- Gesamtbevölkerungszahl
- 4115 Bewohner
- Männer
- 49%
- Frauen
- 51%
Bewohner von Dwingeloo
Zahlen für Postleitzahl-Region 7991
- bis 15 Jahre
- 14%
- 15 bis 25 Jahre
- 11%
- 25 bis 35 Jahre
- 17%
- 45 bis 65 Jahre
- 33%
- 65 und älter
- 25%
Haushalte von Dwingeloo
Zahlen für Postleitzahl-Region 7991
- Einpersonig ohne Kinder
- 31%
- Erwachsene ohne Kinder
- 37%
- Haushalte ohne Kinder
- 68%
Haushalte von Dwingeloo
Zahlen für Postleitzahl-Region 7991
- Haushalte mit einem Kind
- 6%
- Haushalte mit mehreren Kindern
- 27%
- Haushalte mit Kindern
- 33%
Wohnungen in Dwingeloo
Zahlen für Postleitzahl-Region 7991
- Wohnungen vor 1945
- 27%
- Wohnungen zwischen 1945 und 1965
- 12%
- Wohnungen zwischen 1965 und 1975
- 19%
- Wohnungen zwischen 1975 und 1985
- 14%
- Wohnungen zwischen 1985 und 1995
- 14%
Wohnungen in Dwingeloo
Zahlen für Postleitzahl-Region 7991
- Wohnungen zwischen 1995 und 2005
- 10%
- Wohnungen zwischen 2005 und 2015
- 2%
- Wohnungen nach 2015
- 2%
- Mietwohnungen
- 30%
- Eigentumswohnungen
- 70%
Sonstige Einzahlungen Dwingeloo
Zahlen für Postleitzahl-Region 7991
- Durchschnittliche WOZ-Wert
- € 309.000,-
- Personen unter 65 Jahren mit Hinterbliebenengeld
- 5%
Sonstige Einzahlungen Dwingeloo
Zahlen für Postleitzahl-Region 7991
- Adressen pro Quadratkilometer
- 232
- Urbanität (Skala von 1 bis 5)
- 20%
Zandbergen Makelaardij
Falls Sie Fragen haben oder eine Besichtigung planen möchten, können Sie das Formular rechts verwenden. Danach wird Ihnen kurzfristig jemand kontaktieren.
Egginklaan 2 - 4
7971 CA, Havelte
0521 - 340 043 info@zandbergenmakelaardij.nl www.zandbergenmakelaardij.nlKontakt aufnehmen
Über uns
Ein Haus kaufen oder verkaufen ist kein alltäglicher Vorgang. Es erfordert eine gute Vorbereitung und Begleitung. Bei Zandbergen Makelaardij stehst du nicht allein da. Unser Team – bestehend aus Gerben (NVM Register Makler), Rik (NVM Makler), Annemieke (Büroeinsatz) und Martine (Maklerassistentin) – steht dir mit Fachwissen und Begeisterung zur Seite.
Wir sind lokal verwurzelt in der Region Meppel, Westerveld und Umgebung. Ihr findet uns bei Sportvereinen, auf dem Fußballfeld oder während einer Wanderung durch die schönen Naturgebiete in Drenthe und Overijssel. Auch im gesellschaftlichen Bereich sind wir aktiv: Wir unterstützen lokale Sportclubs und arbeiten gerne mit Unternehmern aus der Region zusammen.
Zandbergen Immobilien wurde 2004 gegründet. Seitdem haben wir zahlreiche Menschen bei der Suche oder dem Verkauf ihres Wohnorts unterstützt. Unsere Kenntnisse bleiben aktuell dank regelmäßiger Weiterbildung. Zudem sind wir Mitglied der NVM, bei der Gerben Zandbergen eine führende Rolle als Vorsitzender des Drenthe-Ausschusses einnimmt.
Suchst du einen Immobilienmakler, der die Region kennt, engagiert ist und für Qualität steht? Wir freuen uns, Sie kennenzulernen!
Neueste Bewertungen
-
Klaproosweg 59
Ich bin sehr zufrieden mit dem Service. Alles war angenehm und professionell, mit klarer Kommunikation und guter Betreuung.
-
Kick Harms
Zeer onprofessioneel bedrijf. Mijn woning werd getaxeerd samen met z'n broer die zich voordoet als bodyguard. Met een hoop bombarie stormen...
-
Korenbloemweg 2 g
Von der ersten Besprechung bis zum Ende immer klare Kommunikation. Bei jeder Besichtigung wurde gut informiert. Wir sind mehr als zufrieden,...